Редуктор Ч-80

Червячный редуктор Ч 80 — приводное оборудование, предназначенное для изменения крутящего момента и угловых скоростей. Агрегаты данной серии могут использоваться для работы с постоянной и переменной нагрузкой в течение длительного времени (максимальное время непрерывной эксплуатации — 24 ч/сутки) либо с периодическими остановками. К особенностям редуктора Ч-80 относятся износостойкость и одинаковая эффективность работы при вращении валов в обе стороны. Срок службы агрегата зависит от условий его эксплуатации.

Пример условного обозначения при заказе

Редуктор Ч-80-40-52-1-2 ВУЗ, ТУ2-056-181-79, что означает:
редуктор червячный одноступенчатый универсальный типа Ч с межосевым расстоянием 80 мм, номинальным передаточным числом 40, вариантом сборки 52, с расположением червяка под колесом (вариант 1 расположениz червячной пары), вариантом установки с лапами 2, с вентилятором В, в климатическом исполнении У с категорией размещения 3.
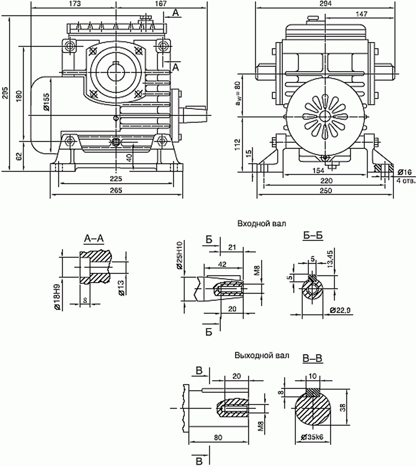
Чертежи
Технические характеристики

Чертежи

Габаритные и присоединительные размеры




Варианты сборки редуктора и расположения червячной пары

Варианты расположения лап

Технические характеристики

Базовые условия использования редукторов:

Агрегат адаптирован для работы с переменной и постоянной нагрузкой (однонаправленная/реверсивная).
Эксплуатация в постоянном режиме (не более 24 ч/сут) или с периодическими остановками.
Вал редуктора вращается в обе стороны. Частота вращения – не более 1800 об/мин.
Атмосферные условия: I и II (ГОСТ 15150-69). Запыленность окружающего воздуха не должна превышать 10 мг/м.куб.
Климатические варианты исполнения: У, Т – категории размещения 1-3; УХЛ/О – категория размещения 4 (ГОСТ 15150-69).